Двухкомнатная квартира 53,50 м2 по ул. Максима Горького 95 за 9000000 руб.

Двухкомнатная квартира по ул. Максима Горького, 95 в Новосибирске
Цена 9 000 000 р. (168 224 р./м2)
Подать заявку на ипотеку
Адрес Максима Горького, 95
Этаж 8/11
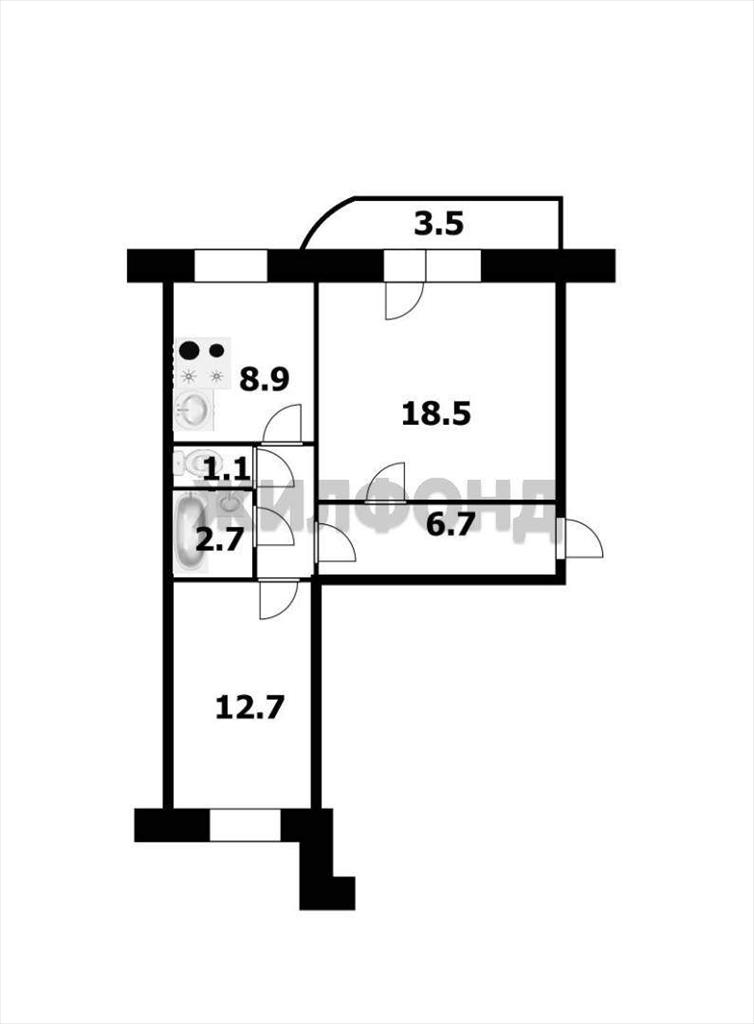
Площадь общая 53,5 м2, жилая 31,2 м2, кухни 8,9 м2
Кол-во комнат Двухкомнатная
2 комн. квартира по ул. Максима Горького. Общей площадью: 53.50 кв.м. Редкий вариант в данной локации! Прекрасная, полноценная 2х комнатная квартира в самом центре города! Вся необходимая инфраструктура в шаговой доступности: ТРЦ Аура, метро Площадь Ленина, Новосибирский театр Оперы и Балета, а также различные магазины, аптеки, детский сад, школа искусств, гимназия №1, лицей №12, средняя школа № 29. Установлен шлагбаум, поэтому всегда есть парковочные места. Возможны все виды расчетов, в собственности более 5 лет! Покажем в любое удобное время, ключи в АН! Приглашаем на просмотр! ! Рядом с объектом находятся: 1 школа, 7 детских садов, 12 продуктовых магазинов, 6 спортивных учреждений, 1 лицей, 1 колледж. Возможен обмен на вашу недвижимость. Возможна продажа в рассрочку. При звонке, пожалуйста, сообщите номер варианта - JV002054127356
Описание дома
Этажность дома 11
Объявление № 23461219
Дата подачи:
22 октября 2025 г. 23:24
Дата обновления:
22 октября 2025 г. 18:15
Просмотров 17 Хотите продать быстрее?

Продавец
Оксана Юрьевна
Показать номер телефона
Пожаловаться
Комментарии:
Добавить